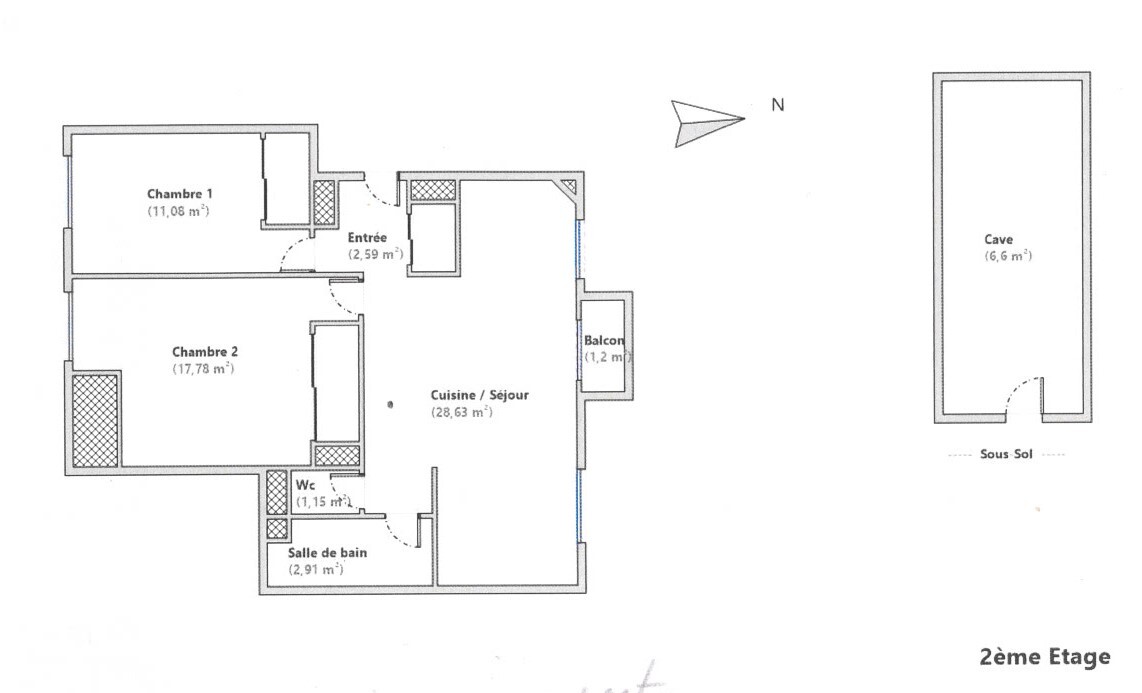
A DEUX PAS DU JARDIN MASSEY ET DE LA PLACE VERDUN, AU DEUXIEME ETAGE D'UNE RESIDENCE SECURISEE APPARTEMENT RENOVE DE TYPE 3 D'ENVIRON 65 M² COMPRENANT : une entrée avec placard desservant une pièce de vie avec cuisine ouverte aménagée et équipée d'environ 29 m² donnant sur un balcon en exposition Sud-Est, deux chambres avec placards (11 et 17 m²), une salle de bain ainsi qu'un wc séparé. Une cave privative en sous-sol ainsi qu'une place de parking aérienne. Chauffage individuel au gaz de ville. Double vitrage. Electricité refaite.


* FAI : Frais d'agence inclus
* CC : Charges Comprises
* HC : Hors charges